Skip to main content
Home

"I want to" Navigation

  • apply
    Apply & Report
    • Report a problem
    • Vacant Unit Declaration
    • Building Permit
    • Business Licence
    • Jobs at the City
    • Property Tax eBilling
    • Recreation Programs
    • Subsidized Housing
    • View more...
  • pay
    Payments
    • Administrative Penalty Notice
    • Cat Registration
    • Dog Licence
    • Parking Penalty Notice
    • Property Tax
    • Provincial Offences Notice
    • View more...
  • calendar
    Reserve & Book
    • Building Inspections
    • Event Planning & Rentals
    • Golf Tee Time
    • Hamilton Sign Lighting
    • Paramedic & Ambulance
    • Respiratory Vaccine
    • Routine Vaccine
    • View more...
  • register
    Get Involved
    • Council & Committee Meetings
    • Delegate at Council
    • Engagement & Consultation
    • Livestream - Council Chambers
    • Livestream - Room 192/193
    • Livestream - Room 264
    • Lobbyist Registry
    • View more...
  • learn
    Stay Informed
    • Ask a question
    • Contact Us
    • City News & Notices
    • Frequently Requested By-laws
    • HSR Schedules & Detours
    • Lane Restrictions & Road Closures
    • Subscribe to E-Updates
    • Waste Collection Schedule
    • View more...

Hamilton Search

Main navigation

  • people People & Programs
    • Adults 55+ Services
      • Age Friendly Hamilton
      • Senior and Older Adult Resources
    • CityHousing Hamilton
      • Applicants
        • Application Process
        • Housing Search
        • Market Rent Housing
      • Development & Revitalization
        • Asset Renewal
        • Development Stories
          • 257 King William Development
          • 8 Roxanne Dr: A Sustainable Step Forward for CityHousing Hamilton
          • Eastern Canada’s first volumetric modular high-performance building
          • Hamilton is Home Initiative
          • Sensitive infill development creates 55 homes
          • World’s largest residential Passive House EnerPHit retrofit
        • Development Projects
          • 106 Bay St. N
          • 1620 Main St E
          • 263 Main St E
          • 405 James St N
          • 500 MacNab Street North
          • 55 Queenston Rd
          • 58 Macassa Ave
          • 8 Roxanne Dr
          • 257 King William Street
      • Tenants
        • Complaint Resolution
        • Housing Support Programs
        • Maintenance and Repairs
        • Paying Your Rent
        • Pest Control - CityHousing Hamilton Request
        • Safe Apartments
        • Tenant Accessibility Survey
        • Tenant Safety
        • Tenants First Team
        • Tenants First
    • Community Funding & Grant Programs
      • Building Safer Communities Grant
      • City Enrichment Fund
        • CEF Agriculture Program
        • CEF Arts Program
        • CEF Communities, Culture & Heritage Program
        • CEF Community Services Program
        • CEF Digital Program
        • CEF Environment Program
        • CEF Sport & Active Lifestyles Program
        • CEF Appeals Process
      • Downtown Hamilton Creative Placemaking Grant
      • Hamilton Future Fund
    • Early Years & Child Care
      • Child Care Services
        • Child Care Registry
        • Child Care Subsidy Calculator
        • Financial Support for Child Care
        • Ontario Child Care Tax Credit
        • Red Hill Family Centre
      • Early Childhood Education
      • Early Years Services
        • Early Years Community Plan
        • Early Years Programs & Services
        • EarlyON Child and Family Centres Locations
    • Financial & Stability Supports
      • Ontario Works
        • Apply for Ontario Works
        • Access your file with MyBenefits
        • Receiving Ontario Works
      • Support Programs
        • Learning, Earning and Parenting Program (LEAP)
        • Dental & Denture Services
        • Free Menstrual Products
        • Funerals, Burials & Cremations
        • Home Management Program
        • Special Supports Program
        • Snow Clearing Subsidy
        • Holiday Registry
    • Hamilton Municipal Cemeteries
      • Planning Ahead
        • Guide to Services & Merchandise
        • Pre-Planning
        • Start The Conversation
      • Cremation & Burial
        • Burial Options
        • Cremation Options
        • Family & Pet Burial
        • Field of Honour
        • Natural Burial
      • Products & Services
        • Historical Family Search
        • Memorialization Options
        • Monuments & Markers
        • Personalization Options
        • Service Options
      • Our Cemeteries
        • Cemeteries By-laws
        • Cemeteries Directory
        • Cemetery Events
        • Historical Walking Tours
        • Remembering Services
    • Housing & Shelter
      • Housing Services
        • Applicant and Tenant Review
        • Housing Provider Information
        • Priority Applications
        • Social Housing
      • Housing Supports
        • Canada-Ontario Housing Benefit
        • Emergency Repair Program
        • Eviction Prevention
        • Housing Allowances
        • Housing Emergency Fund
        • Ontario Renovates Programs
        • Rent Secure
        • Residential Care Facilities Subsidy Program
      • Preventing & Ending Homelessness
        • Emergency & Violence Against Women Shelters & Drop-in Programs
        • Winter Response Strategy
        • Approved Temporary Shelter Expansion
        • City of Hamilton Encampment Protocol
        • Encampment Response
        • Former Cathedral Boys School
        • Hamilton’s Homelessness Ending Strategy
        • Housing & Homelessness Action Plan
        • Point in Time Connection
        • Resources for Homeless-serving Partners
        • Resources for Individuals at Risk of and Experiencing Homelessness
      • Tenant & Landlord Resources
        • Fire Safety for Rental Properties
        • Landlord Information
        • Landlords Role in Hot Weather
        • Register a Tenant By-law Complaint
        • Rent Supplement Program for Landlords
        • Rental Property By-laws
        • Safe Apartments Buildings Program
        • Second-hand Smoke in Shared Housing
        • Tenant Defence Fund Pilot Program
        • Tenant Information
        • Tenant Support Program
    • Inclusion, Diversity, Equity & Accessibility
      • Indigenous Relations
        • Indigenous Dates of Recognition
          • National Ribbon Skirt Day
          • National Indigenous Languages Day
          • National Day of Awareness for Missing and Murdered Indigenous Women and Girls
          • National Indigenous History Month
          • National Indigenous Peoples Day
          • National Day for Truth and Reconciliation
          • Treaties Recognition Week
          • International Inuit Day
          • Indigenous Veterans Day
          • Louis Riel Day
        • Land Acknowledgement
        • Urban Indigenous Strategy
        • Urban Indigenous Strategy Implementation Plan
        • Indigenous Landmarks & Monuments Review
        • Indigenous Events & Initiatives
        • Indigenous Hub
      • Accessibility Services
        • Accessibility Feedback/Complaint Form
        • Accessibility Guidelines & Policies
        • Multi-Year Accessibility Plan
      • Charter of Rights of Children & Youth
      • Jewish Life in Hamilton
      • Salam Hamilton
    • Long-term Care
      • Macassa Lodge
        • Macassa Lodge Redevelopment
      • Wentworth Lodge
    • New to Hamilton
      • Hamilton Welcomes Ukrainians
      • Healthcare in Hamilton
      • Housing for Newcomers
        • Hamilton Housing Guide
        • Low Income Housing
        • Purchasing a Home
      • Settlement Services for Newcomers
      • Studying in Hamilton
        • After Graduation
        • Arriving in Hamilton
        • Before You Arrive
        • Connect to Your City
    • Outreach & Education
      • Forestry Outreach & Education
        • Forestry Community Events
        • Forestry School Presentations
      • Museums Learning Adventures
      • Waste Management Outreach & Education
        • Waste Collection Safety
        • Waste Facilities Educational Videos
        • Waste Management Community Education
        • Waste Management Student Education
      • Water Outreach & Education
        • Children's Water Festival
        • Water Education Resources
        • World Toilet Day
    • Public Health
      • Alcohol, Drugs & Gambling
        • Alcohol & Drugs
        • Alcohol, Drug & Gambling Services
        • Hamilton Opioid Information System
        • Harm Reduction Services
          • Drug Checking
          • Harm Reduction Supplies
          • Naloxone Kits
          • Street Health Clinics
          • The Van Needle Syringe Program
      • Breastfeeding
        • Breastfeeding Supports
        • Feeding Your Baby
        • Hamilton’s Breastfeeding Coalition
        • Breastfeeding Information
      • Community Health Data
      • Dental Health
        • Emergency Dental Services
        • Oral Health Information
        • Children's Dental Health
        • Adult & Senior's Dental Health
      • Diseases & Conditions
        • Ebola Virus Disease (EVD)
        • Group A Streptococcus (GAS)
        • Respiratory Illnesses
          • Protect Yourself and Others
          • Respiratory Vaccines
          • Respiratory Virus Data
          • Testing & Treating Respiratory Illnesses
        • Tuberculosis
        • Viral Encephalitis & Meningitis
      • Environmental Health & Hazards
        • Air Quality in Hamilton
        • Animal & Insect-related Diseases
          • Avian Influenza - H5N1
          • Lyme Disease & Ticks
          • Rabies
          • West Nile Virus
        • Cold Alerts & Community Response
        • Environmental Illnesses
          • Lead
          • Legionnaires' Disease
          • Radon
        • Heat Warnings & Heat-Related Illness
        • Safe Water Program
        • Sun Safety
      • Food & Nutrition
        • Learning to Cook
        • Monitoring food affordability in Hamilton
        • Feeding Your Baby & Children
        • Healthy Snacks for Sports
      • Food Safety
        • Food Safety at Home
      • Health Care Professionals
        • Dental Programs & Clinic Resources
        • Outbreak Reporting & IPAC for Congregate Living Settings
        • Prenatal, Family & Child Health Referrals
        • Reporting Infectious Diseases
          • Rabies Reporting & Vaccines
          • Tuberculosis Reporting, Guidelines and Resources
        • Sexual Health and Sexually Transmitted Blood-borne Infections
        • Smoking & Substance Use Referrals
        • Vaccine Ordering, Cold Chain & Adverse Events Reporting
      • Health Inspection Results
        • Convictions & Orders in Hamilton
        • Infection Prevention and Control (IPAC) Investigations
      • Healthy Pregnancy
        • Mental Health During & After Pregnancy
        • Prenatal Healthcare
        • Prenatal Supports
          • Welcome Baby Prenatal Nutrition Program
            • Welcome Baby Members
        • Having a Healthy Pregnancy
        • Home Visiting Programs
      • Healthy Schools
        • Child and Youth Health Atlas
        • Health Resources for Schools
          • Food and Nutrition in Schools
          • Growth, Development & Sexuality
          • Healthy & Equitable Schools
          • Mental Health Promotion
          • Personal Safety & Injury Prevention
          • Physical Activity Resources
          • Positive School Environment
          • Sedentary Behaviour
          • Substance Use & Harm Reduction
          • Sun Safety, Shade and the Importance of Trees
          • Tobacco & Vaping
        • Planning for a Healthy School
        • Public Health Services in Schools
          • Public Health Nurses in Schools
          • School Dental Screening
          • Visual Health Information for Schools
      • Mental Health Services
        • Child & Adolescent Services
        • Mental Health & Street Outreach Program
      • Parenting
        • Children's Mental Health
          • Attachment & Relationships
          • Brain Development
          • Parent & Caregiver Well Being
        • Parenting Groups in Hamilton
        • Car Seat Support
        • Child Safety
        • Children's Growth & Development
        • Parenting Toddlers and Preschoolers
        • Parenting Babies
        • Parenting School Aged Children
          • Bullying
          • Head Lice
          • Screen Use & Online Safety
          • Sexual Health & Puberty
          • Youth Vaping & Smoking
      • Physical Activity
      • Public Health Services Annual Report
      • Sexual Health
        • Sexual Health Clinics
        • Sexually Transmitted Infections
        • Contraception
      • Smoking & Vaping
        • Quit Smoking
        • Second-hand Smoke
        • Secondhand Smoke and Pets
        • Smoke & Vape Free Spaces
      • Vaccines & Immunizations
        • Community Vaccine Clinic
        • Respiratory Illnesses
        • Vaccine Safety
        • Vaccines & Children
        • Reporting Vaccinations
        • School Vaccine Clinics
        • School Screening & Suspensions
        • Vaccine Exemptions
        • Vaccine-Preventable Diseases
          • Bacterial Encephalitis & Meningitis
          • Chickenpox
          • Herpes Zoster (Shingles)
          • Measles
          • Meningococcal Disease
          • Mpox
          • Mumps
          • Pertussis or Whooping Cough
          • Respiratory Syncytial Virus (RSV)
      • Visual Health
    • Youth Services
  • home Home & Neighbourhood
    • Animals & Pets
      • Adopt or Foster a Pet
        • Adoptions
        • Foster an Animal
      • Responsible Pet Ownership
        • Claiming Your Pet from the Shelter
        • File an Animal-Related By-law Complaint
        • Hot Cars and Pets
        • Pet Etiquette on City Properties
        • Responsible Animal Ownership By-law
        • Spay or Neuter Your Pet
        • Vaccinate Your Pet
      • Dogs
        • Dog Parks and Free Running Areas
        • Dog Licence
        • Dog Owners' Liability Act
        • Dog Bite Prevention
      • Cats
        • Community Cats
        • Register Your Cat
      • Lost, Found or Surrender
        • Found Pets
        • Lost and Found Pets
        • Stray Animals
        • Surrendering an Animal
      • Other Domesticated Animals
      • Wildlife
        • Feeding Wildlife
        • Living with Wildlife
        • Sick, Injured or Orphaned Wildlife
      • Volunteer or Donate
        • Volunteer at Animal Services
        • Donate to Animal Services
    • Emergency Services
      • Emergency Preparedness
        • After an Emergency
        • During an Emergency
        • Emergency Information in Different Languages
        • Preparing for Emergencies
          • Tips for Earthquakes
          • Tips for Flooding
          • Tips for Hazardous Materials
          • Tips for Power Outages
          • Tips for Tornadoes
          • Tips for Winter Storms
      • Fire Department
        • About the Hamilton Fire Department
        • Camp FFIT Hamilton
        • Fire Permits, Inspections, Reports and Services
          • Child care Inspections
          • Family Fireworks Sales Permit
          • Filming Related Services
          • Foster Home and Group Home Inspections
          • Open Air Burning Permit
          • Residential and Commercial Inspections
        • Fire Prevention
          • Family Fireworks Safety
          • Fire Prevention on the Farm
          • Holiday Fire Safety
          • Home Fire Safety
          • Smoke Alarms & Carbon Monoxide Alarms
          • Student Accommodation Safety Tips
          • Winter Fire Safety
        • Fire Safety Education, Public Events and Programs
          • Fire Station Tour Request Application
          • Fire Truck Request Application
        • Fire Stations
          • New Waterdown Fire & Police Station
      • Paramedics
        • About the Hamilton Paramedic Service
          • Paramedic & Ambulance Community Engagement Request
        • Medical Priority Dispatch System
        • Make the Right Call in Non-Emergency Situations
        • Medical Emergency Information Program
        • Public Access Defibrillation Program
        • Ambulance Patient Records
        • Hamilton Paramedic Service Master Plan
    • Environmental Stewardship
      • Bird Friendly City
      • Chedoke Creek Remediation
        • Chedoke Creek Spill & Remediation Activities
      • Community Environmental Initiatives
        • Adopt-a-Park
          • Community Improvement Report
        • Community Tree Planting
        • Litter Education
        • Reporting Graffiti
        • Team Up to Clean Up
      • Environmental Plans & Strategies
        • Biodiversity Action Plan
        • Clean & Green Hamilton Strategy
        • Hamilton's Climate Action Strategy
          • Community Energy & Emissions Plan
          • Hamilton’s Climate Change Impact Adaptation Plan
          • Office of Climate Change Initiatives
            • Community Gardens
          • Climate Action Progress
          • Take Action
          • Good News Stories
          • Better Homes Hamilton Program
          • Hamilton’s Climate Change Reserve
          • Priority Focus Areas
        • Office of Energy Initiatives
        • Urban Forest Strategy
      • Our Harbour
        • Hamilton Clean Harbour Program
        • Harmful Algal Blooms
        • Current Clean Harbour Projects
        • Dundas Wastewater Treatment Plant Upgrades
        • Woodward Wastewater Treatment Plant Upgrades
        • Completed Clean Harbour Projects
      • Pollinators
    • Garbage & Recycling
      • Apartment Waste
        • Apartment Blue Cart Recycling
        • Apartment Garbage & Bulk Items
        • Apartment Green Bin & Composting
        • Property Owners, Managers & Superintendents
      • Blue Box & Recycling
        • Blue Box Program Update
      • Business Waste
        • Business Recycling Program Update
        • Single-Use Plastics Business Recognition
        • Waste Collection for Businesses
      • Garbage & Bulk Items
        • Bulk Items and Furniture
        • Garbage
        • Glanbrook Landfill Site
        • Illegal Dumping
      • Green Bin & Composting
        • Backyard Composting
        • Compost Giveaways
        • Composting & Your Green Bin
        • Green Bin
      • Waste & Recycling Facilities
        • Appliances and Scrap Metal
        • Community Recycling Centres
        • Household Hazardous Waste
        • Reuse Shed
      • Waste Collection Schedule
      • Yard Waste
    • Getting Around
      • Biking & Cyclists
        • Active Transportation Benchmarking Program
        • Bike Month
          • Bike Month Registration Form
        • Bike Parking
        • Cargo E-Bike Pilot Program
        • Cycling Groups & Shops
        • Cycling Infrastructure
          • Bay Street Bike Lanes
          • Cannon Street Cycle Track
          • Keddy Access Trail
          • Mountain Climber on HSR for Cyclists
        • Cycling Routes & Maps
        • Cycling Safety & Education
        • Hamilton Bike Share
        • Open Streets Hamilton
        • Personal Use Electric Kick Scooter Pilot Program
        • Shared Commercial Electric Kick Scooter Pilot Program
      • Driving & Traffic
        • CarShare in Hamilton
        • Lane Restrictions & Road Closures
        • Main Street Two-way Conversion Study
        • Municipal Parking Garage Rehabilitation & Summers Lane Reconstruction
        • Permanent Road and Alleyway Closures
        • Queen Street Two-way Traffic Conversion
        • Taxi Services in Hamilton
        • Temporary Road Use Permits
        • Traffic Signals & Signage
        • Truck Route Network
        • Vision Zero - Roadway Safety
          • Distracted Driving
          • Motorcycle Safety
          • Pedestrian Crossovers
          • Rail Safety
          • Rain Road Safety
          • Roadway Safety Tools
          • Roundabouts
          • Safe Stopping
          • Seatbelt Safety
          • Slow Down, Move Over for Emergency Vehicles
          • Speeding & Slow Down Zones
          • Walking on Expressways
          • Winter Driving
      • Parking
        • MTO Accessible Parking Permit Exemptions in Hamilton
        • Municipal Car Parks
          • Reserve a Municipal Car Park
        • On-Street Parking
        • Parking Enforcement
        • Parking Meter or Municipal Lot Parking Request Form
        • Parking Meters & Pay Machines
        • Parking Near Schools
        • Passport Parking App
        • Pre-Holiday Parking
        • Residential Parking on Private Property
        • Temporary Regulation Enforcement
        • Towing
        • Toys for Tickets
      • School Zones & Safety Tips
        • Active & Sustainable School Travel
          • Active and Sustainable School Travel Event Registration
          • School Site Design Guidelines for Active and Sustainable Transportation
        • Back to School Safety
        • School Crossing Guards
      • Smart Commute
        • Find Your Carpool Match
        • Join Smart Commute
        • Plan Your Trip
        • Smart Commute Events
        • Smart Commute Member Organizations
      • Streets & Sidewalks
        • Complete Street Reports for Wards
        • Pavement Markings
        • Road & Sidewalk Maintenance
        • Sidewalk Snow Clearing
        • Snow Clearing
        • Street Lighting
        • Traffic Island Beautification
      • Walking & Pedestrians
        • Accessible Pedestrian Signals
        • Pedestrian Safety
    • HSR
      • Accessible Transit
        • ATS Eligibility & Registration
        • Accessible Low Floor Buses
        • DARTS
        • Taxi Scrip Program
      • Fares
        • Fares & Photo IDs
        • HSR Fare Assist
        • PRESTO Cards
        • PRESTO E-Tickets Mobile App
        • Pay your Fare with Debit or Credit
        • Transfers & Connections
      • HSR Next
      • Riding with HSR
        • HSR Alert: Real-Time Transit Information
        • HSR At-Stop Solar Lighting Pilot Project
        • Hidden Disabilities Sunflower on HSR
        • Real-Time Bus Arrival Displays
        • Transit from the Airport
        • Using HSR
        • Bikes on Buses
        • Customer Service
        • (Re)envision the HSR
        • HSR Customer Research Panel
      • Schedule & Route Tools
        • Schedules & Detours
        • HSR Holiday Schedules
        • Trip Planning Tools
        • HSR myRide On-Demand
        • Trans-Cab
        • Hamilton Tiger-Cats & HSR
    • Home & Property
      • Basement Flooding
        • Basement Flooding Preparedness
        • Protective Plumbing Devices
        • Protective Plumbing Program
        • Sewer Back-Up and Blocked Drains
      • Home Water Services
        • Advanced Metering Infrastructure Project
        • Frozen Pipes
        • Hamilton Utilities Billing
          • HUB Billing & Payment Options
          • HUB Property, Owner & Tenant Information
        • Lead Water Service Replacement
        • Lead in Your Drinking Water
        • Low/Poor Water Pressure
        • Service Line Warranty Program
        • Shutting Off Your Water
        • Water Efficient Homes
        • Water Meters
        • Water Rates
          • Stormwater Fee
          • Stormwater Funding Review
        • Water Service Line Replacement
      • Pest Control
        • Bed Bugs in the Workplace
        • Bed Bugs
        • Cockroaches
        • Landlord Pest Control Responsibilities
        • Rats
      • Private Wells & Cisterns
        • Cistern Maintenance & Water Testing
        • Residential Well Decommissioning Grant
        • Private Wells
        • Well Maintenance & Water Testing
        • Well Water After a Flood
        • Arsenic limits in Drinking Well Water
        • Naturally Occurring Lead in Bedrock
        • PFOS and Propylene Glycol
      • Property
        • Encroachment Agreements
        • Lot Grading & Drainage
        • Property Damage
        • Property Survey
        • Property Use By-laws
        • Survey Markings on Your Property
        • University District Safety Initiative
        • Vacant Buildings Registry
      • Trees & Gardens
        • Tree Health Data & Monitoring
        • Tree Ownership & Responsibilities
        • Tree Health
        • Doing Work Near a Tree
        • Tree Giveaway Program
        • Street Tree Planting Program
        • Pesticide Alternatives
        • Rain Barrel Sale
        • Watering Restrictions
        • Water Efficient Lawns & Gardens
      • Water Pollution Prevention
        • Catch Basin & Street Drain Use
        • Downspout Disconnections
        • Emptying Pools & Hot Tubs
        • Flushables
        • Household Fats, Oil and Grease
        • Sewer Inspection Program
        • Spills to the Sewer
    • Property Taxes
      • Municipal Accommodation Tax
      • Property Tax Billing
        • Changes to Your Property Tax Bill
        • Pay Your Property Tax
        • Property Tax Billing By-laws
        • Property Tax Due Dates and Penalties
        • Request for Tax Certificate
        • Sale of Properties for Tax Arrears
        • Tax Assistance Programs
        • Understanding Your Property Tax Bill
        • eBilling for Property Tax
      • Understanding Property Tax
        • Area Rating
        • How Property Tax Rates are Calculated
        • Municipal Tax Competitiveness Study
        • Property Assessment
        • Tax Calculator
        • Tax Impact Mapping
      • Vacant Unit Tax
    • Tickets, Fines & Penalties
      • Administrative Penalty Notice
      • Parking Penalty Notice
      • Provincial Offences Notice
    • Water, Wastewater & Stormwater
      • Stormwater Management
        • Low Impact Development
        • Municipal Drains
        • Stormwater Management Ponds
        • Surface Water Management
        • Surface Water Quality Program
      • Wastewater Collection & Treatment
        • Biosolids Management
        • Monitoring Wastewater Overflows and Bypasses
        • Sewer Lateral Cross-Connections
        • Sewer Systems
        • Wastewater Quality Management System
        • Wastewater Systems
      • Water Treatment & Distribution
        • Community Wells
        • Corrosion Control
        • Drinking Water Quality Management System
        • Drinking Water Quality
        • Drinking Water System
        • Hydrant Flushing
        • Low Level Water Conditions
        • Source Water Protection
          • Septic System Inspection Program
          • Source Water Protection Restricted Land Use Application
        • Water Fluoridation
  • city Build, Invest & Grow
    • InvestinHamilton.ca
    • Buying & Selling with the City
      • Bids and Tenders
        • Blanket and Release Purchase Orders
        • Fair Wage Policy and Fair Wage Schedule
        • Medium-Term Finance & Procurement Solution
        • Procurement Policy By-law
        • Professional and Consultant Services Roster
        • Surplus Items Auction
        • Vendor Information
        • Vendor Performance Management Program
      • Real Estate
        • Housing Opportunities on Municipal Land
          • 5 & 13 Lake Avenue South, Stoney Creek
          • 1126 Garth Street, Hamilton
          • 70 Hope Avenue
          • 115 Campbell Avenue
          • 207 Parkside Drive
          • 299 & 302 Balmoral Ave N & 309 Grosvenor Ave N
        • Opportunity Call for New Police Headquarters & Division 1 Station
        • Inventory of City-Owned Properties
        • Properties for Sale or Lease
          • 10 Cormorant Road, Hamilton
          • 28 James Street North, Hamilton
          • 64 East 31st Street, Hamilton
          • 79 Frederick Avenue, Hamilton
          • 25-35 Trillium Avenue, Hamilton
          • 89 King Street East, Hamilton
          • 272 Sherman Avenue South, Hamilton
          • 350 King Street East, Hamilton
          • 1400 Baseline Road, Stoney Creek
          • 2200 Upper James St, Hamilton
          • Piers 5, 6 & 7 West Harbour Development Blocks
        • Real Estate Portfolio Management
    • Construction & Renovation
      • Construction in Your Area
        • Concession St and Mountain Brow Improvements Project
        • Dickenson Road Sanitary Trunk Sewer Project
        • Highland Road Reservoir Upgrades
        • Nebo Road - Rymal Rd E to Twenty Rd E Urbanization
        • Scenic Reservoir Coating and Repairs
        • Stone Church Road Feedermain
      • Residential Building & Renovation
        • Applicable Law for Building Permit Applications
        • Building Permit Application Requirements
        • Building Permit Fees
        • Building Permit Review and Approval
        • Building Inspections
        • Dust Mitigation During Construction & Demolition
        • Hiring a Designer for Building Permit Drawings
        • Property Record Search
        • Residential Construction Requirements for Radon Gas Mitigation
        • Residential Infill Construction
        • Accessory Buildings
        • Additional Dwelling Units (ADUs)
        • Porches and Decks
        • Residential Fences
        • Swimming Pools
        • Tents
        • Building & Demolition Permits Activity
    • Downtown Entertainment Precinct
    • Hamilton Music & Film
      • Filming in Hamilton
        • Apply for a Film Permit
        • Filming Guidelines
        • Information for Residents and Businesses
      • Music in Hamilton
        • Musician Support Programs
        • Street Performers
        • The Anne Foster Windows
    • Housing Secretariat
      • Affordable Housing Development Project Stream
        • Acquisition Program Application
        • Development Program Application
      • Housing Accelerator Fund
        • Additional Dwelling Unit and Multi-Plex Housing Incentive Program
        • Housing Acceleration Incentive Program
        • Rapid Transit Multi-Residential Rental Housing Incentive Program
      • Housing Needs Assessment
    • Operating a Business
      • Business By-laws
        • Sign By-law
      • Child Care Licensees
        • Canada-Wide Early Learning and Child Care Agreement
        • Child Care Document Submission
        • Early Years System
        • Fee Assistance
        • Funding Agreements
        • Funding Opportunities
        • Licensee Resources
      • Commercial Water & Sewer
        • Backflow Prevention Program
        • Construction Site and Wastewater Management
        • Sewer Use By-law
        • Small Drinking Water Systems
        • Wastewater Abatement Program
        • Water Hauler
      • EarlyON Child and Family Centre Service Providers
        • Funding Agreements
        • Provider Resources
        • Qualified Teams & Staff Requirements
        • Serious Incident Reporting Policy
        • Services & Responsibilities
      • Health Requirements & Inspections
        • Child Care Centres
        • Cooling Towers
        • Drinking Water Haulers
        • Food Premises & Food Handling
        • Group Homes, Lodging Homes & Funeral Homes
        • Personal Service Settings
        • Public Swimming Pools & Spas
        • Residential Care Facilities
        • Selling Tobacco & E-Cigarettes in Hamilton
        • Smoke and Vape-Free Public Places and Workplaces
        • Tanning Bed Regulation
      • Workplace Policies & Programs
        • Healthy Eating in the Workplace
        • Mental Well-being in the Workplace
        • Physical Activity in the Workplace
        • Smoke & Vape-Free Workplace
    • Planning & Development
      • Committee of Adjustment & Delegated Consent Authority
        • Agendas & Notices
        • Land Severance (Consent)
        • Minor Variance
        • Process & Participation for Committee of Adjustment
      • Design Review Panel
      • Employment Area Inventory
      • Environmentally Significant Areas Impact Evaluation Group
      • Financial Incentives & Community Improvement Plans
      • Development Charges
        • Community Benefits Charges
        • Development Charges
        • Parkland Dedication Fees
      • Growth Planning (GRIDS)
        • Employment Land Review
        • GRIDS 2 and Municipal Comprehensive Review
        • GRIDS 2/MCR Urban Growth Survey
        • Land Needs Assessment
      • Heritage Properties
        • Built Heritage Inventory Strategy
          • Beasley Heritage Inventory Project
          • Downtown Dundas Built Heritage Inventory
          • Landsdale Neighbourhood Inventory
          • Melville-Park West Heritage Conservation District Plan
          • Places of Worship Inventory Review
        • Heritage Designation Process
        • Heritage Mapping & Resources
        • Heritage Permits
        • Heritage Plaques and Markers
        • Heritage Policies & Guidelines
        • Heritage Windows
        • Municipal Heritage Register
        • Pre-Confederation Buildings
      • Official Plan
        • Market and Land Supply Monitoring Report
        • Official Plans of Former Municipalities
        • Official Plan Review
          • Conformity Review - Rural & Natural Heritage System Focus
          • Conformity Review - Urban Focus
          • Employment Area Review
          • Major Transit Station Areas
          • Official Plan Review - Local Objectives
        • Provincial Planning Matters
        • Provincial Amendments to the Greenbelt Plan
        • Bill 150 Frequently Asked Questions
        • Rural Hamilton Official Plan
        • Secondary Plans
          • Airport Employment Growth District Secondary Plan
          • Fruitland-Winona Secondary Plan
          • Secondary Planning for Urban Expansion Areas
          • West Harbour Secondary Plan
        • Urban Hamilton Official Plan
      • Planning & Design Studies
        • Bayfront Industrial Area Strategy
        • Dundas Community Node Study
        • Family Friendly Housing
        • James Street North Mobility Hub Study
        • Mountain Brow Vista Study and Management Plan
        • Pleasantview Area Land Use Study
      • Planning Applications
        • Draft Plan of Subdivision or Condominium Approval
        • Formal Consultation
        • Municipal Addressing
        • Official Plan Amendment
        • Part Lot Control
        • Planning Division Fees
        • Rental Housing Protection
        • Site Alteration Permit
        • Site Plan Approval
        • Street Naming & Renaming
        • Urban Boundary Expansion
          • UBE Application: 159 & 163 Sulphur Springs Road
          • UBE Application: Elfrida
          • UBE Application: Twenty Road West Secondary Plan
          • UBE Application: Twenty Road West
          • UBE Application: White Church Secondary Plan
          • UBE Application: White Church
        • Where Development is Happening in Hamilton
        • Zoning By-law Amendment
      • Planning Policies & Guidelines
        • Airport Employment Growth District (AEGD) Wastewater System Capacity Allocation Policy
        • Interim Municipal Support Resolution Protocol
        • Barrier-Free Guidelines
        • City-Wide Corridor Planning Principles and Design Guidelines
        • Complete Streets Design Manual
        • Comprehensive Development Guidelines and Financial Policies
        • Construction and Material Specifications
        • Coordinated Street Furniture Guidelines
        • Cultural Heritage Assessment Guidelines - Documentation & Salvage Report
        • Cultural Heritage Impact Assessment Guidelines
        • Design & Preservation Manual for Assets on Public Property
        • Environmental Impact Statements Guidelines
        • Financial Policies for Development
        • Green Standards and Guidelines for Site Servicing
        • Guide to Coordinating Integrated Planning Processes
        • Guide to Preparing a Conservation Plan
        • Guidelines for Hydrogeological Studies and Technical Standards for Private Services
        • Guidelines for Planning Justification Reports
        • Guidelines for Urban Design Reports
        • Innovative Stormwater Source Control Policy
        • Landscape Design Guidelines for Stormwater Facilities
        • Linkage Assessment Guidelines
        • Masonry Restoration Guidelines
        • Municipal Systems Alterations
        • Park and Open Space Development Guide
        • Public Notice Sign Guide for Planning Act Applications
        • Right-of-Way Utility Installation and Permit Manual
        • Road Widening Dedication Procedure Guide
        • Sewer and Water Permit Process and Design Requirements
        • Sidewalk and Roadway Lighting Policy
        • Site Plan Guidelines
        • Staging of Development
        • Standards and Approved Products Listing and Guidelines
        • Storm Drainage Policy
        • Telecommunication Tower and Antenna Protocol
        • The Gore Standard-Hardscape Design Guidelines
        • Transportation Assessment Guidelines
        • Transit Bus Stop Accessibility Criteria & Guidelines
        • Transit Oriented Development Guidelines
        • Transportation Demand Management Land Development Guidelines
        • Tree Protection Guidelines
        • Urban Braille
        • Urban Design Guidelines
        • Waste Requirements for Design of New Developments and Collection
      • Waterfront Redevelopment
        • CHH Jamesville Redevelopment
        • Community Events and Updates
        • Copps Pier Park
        • Discovery Centre Site Strategy Development
        • Macassa Bay Renewal
        • Pier 8 Block 16
        • Pier 8 Development
        • Pier 8 Gateway Park
      • Zoning
        • Inclusionary Zoning
        • Interactive Zoning Mapping
        • Remnant Zones Project
        • Residential Zones Project
        • Zoning By-law 05-200
        • Zoning By-laws for the Former Communities
        • Zoning Compliance Review
    • Starting a Small Business
      • Business Licences
        • Accessible Taxicab Feedback/Complaint Form
        • Accessible Taxicab Owner Licence
        • By-law to Licence and Regulate Various Businesses
        • Establishment & Mobile Licence
        • Liquor Sales Licence - Temporary Extension of Hours During 2026 Junos
        • Lottery Licence
        • Renovation Licence and Relocation By-law
        • Rental Housing Licence
        • Short-Term Rentals
        • Temporary Business Licence
        • Trade Licence
      • One Stop for Business
        • Business Registration
        • Hamilton Business Centre
        • What is One Stop for Business?
        • Zoning Verification Report Application
      • Permits & Inspections
        • Building Permits for Small Businesses
        • Hauled Sewage Program Permits
        • Outdoor Boulevard Café Encroachment Agreements
        • Park Permits for Food Service Vehicles
        • Publication Box Permits
        • Sewer Discharge Permits
        • Sewer and Water Permits
        • Taxicab Inspections
        • Temporary Outdoor Patio Program
        • Temporary Use By-law for Temporary Tents
  • swimming Things To Do
    • TourismHamilton.com
    • Arts & Music
      • Placemaking Event Programming
      • Poet in Place
      • Public Art
        • Ancaster Memorial Arts Centre Public Art Project
        • Art in Public Places Policy
        • Century Street Parkette Public Art Project
        • Churchill Park Public Art Project
        • Hamilton the Electric City Public Art Project
        • Keddy Access Trail Public Art Project
        • King William Beacon and Gate Public Art Project
        • Locke Street Marker Public Art Project
        • Pipeline Trail Public Art Project
        • Street & Mural Artists Directory
        • The Big Picture - Arts Advisory Commission
        • Traffic Signal Cabinet Wraps Public Art Project
        • West Harbour - James Street Plaza Public Art Project
      • Veevers Estate Accessibility Improvements
    • Festivals & Events
      • Events Calendar
      • Black History Month
      • Doors Open Hamilton
      • Fall Garden & Mum Show
      • Famous Hamiltonian Contest
      • Hamilton Canada Day at Bayfront Park
      • Hamilton Winterfest
      • Remembrance Day Services
      • Spring Discovery Days
      • Spring in the Park
      • World Cup Cheer Zone
    • Golf Hamilton
      • Chedoke Golf Club
        • Stanley Thompson
      • King's Forest Golf Club
      • Club Memberships
      • Golf Programs
        • Junior Programs
        • Disc Golf
        • Winter Golf
      • Book Tee Times Online
      • Contact Information
    • Hamilton Civic Museums
      • Battlefield House Museum & Park National Historic Site
        • Re-enactment of the Battle of Stoney Creek
          • Participant Information
          • Merchant Registration
          • Re-enactor Registration
          • Volunteer Registration
      • Dundurn National Historic Site
      • Fieldcote Memorial Park & Museum
      • Griffin House National Historic Site
      • Group Tour Experiences
      • Hamilton & Scourge National Historic Site
      • Hamilton Children's Museum
      • Hamilton Museum of Steam & Technology National Historic Site
        • Scouting and Guiding at Steam
      • Museum Events
      • The Hamilton Military Museum
      • Whitehern Historic House & Garden National Historic Site
    • Parks & Green Space
      • Beach Water Quality
      • Creating & Improving Parks
        • Park Amenity Studies
          • Mountainbrow Trail Feasibility Master Plan
          • Shoreline Inventory and Assessment of City Owned Waterfront Assets
          • Skateboard Park Study
        • Park Projects
          • Agro Park Spray Pad
          • Albion Falls South Access and Viewing Platform
          • Alexander Park Skate Park
          • Beasley Park
          • Bishop's Park
          • Brightside Park
          • Carter Park Spray Pad and Playground Renewal
          • Centennial Heights Park
          • Central Park
          • Churchill Park
          • Clear Skies Park
          • Confederation Beach Park
          • East Mountain Trail Loop
          • Eastmount Park Redevelopment
          • Gage Park
          • Gatesbury Park
          • Gore Park
          • Gourley Park
          • Hamilton Amateur Athletic Association Grounds
          • Heritage Green Sports Park
          • Highbury Meadows Park
          • Highland Gardens Park Stair Improvements
          • Inch Park
          • Jim Howlett Park
          • Lake Pointe Park
          • Mountain Drive Park
          • Mountainbrow Trail
          • Parkside Hills Park Development
          • Pier 4 Park
          • Pipeline Trail from Brampton Ave to Grace Ave
          • Roxborough Park
          • Sam Lawrence Park
          • Southam Park
          • Spencercreek Estates Park
          • The Nest Gathering Space
          • Valley Community Centre Park
          • Valley Skate Park
          • Victoria Park
          • Vincent Massey Park Expansion
          • Woodlands Park Improvements
        • Play Your Way
      • Gage Park Tropical Greenhouse
      • Parks & Trails
        • Park Washrooms
        • ParkFinder
        • Permitted Tobogganing Hills
        • Trails Listing
        • Water Drinking Fountains
      • Waterfall Safety
    • Recreation
      • Locations
        • Arenas
          • Arena Program: Reusable Cups
        • Outdoor & Wading Pools
        • Recreation Centres & Indoor Pools
        • Seniors Centres & Clubs
        • Spray Pads
      • Programs
        • Adapted and Inclusive Programming
        • Drop-In Programs
          • Drop-In Gym
            • Pickleball
            • Tennis
          • Drop-In Skate
          • Drop-In Swim
            • Water Fit
        • Outdoor Programs
          • Outdoor Ice
          • Supie
        • Registered Programs
          • Advanced Leadership Programs
          • Infant/Toddler Registered (0-3 years)
          • Preschool Registered (3-5 years)
          • Child Registered (6-8 years)
          • Child Registered (9-12 years)
          • Youth Registered (12-17 years)
          • Adult Registered (18+ years)
          • Older Adult Registered (55+ years)
        • Sport & Athlete Development
        • Older Adult 55+ Programs
          • Seniors Month Schedule
        • Camp Kidaca
        • The Centre - Youth Recreation
      • Recreation Job Opportunities
      • Recreation Projects
        • Completed Projects
        • Projects in Progress
      • Facility & Park Rentals
        • Arena & Ice Rentals
        • Community Hall Rentals
        • Community Recreation Centre Rooms
        • Gymnasium Rentals
        • Parks and Pavilion Rentals
        • Pool Rentals
        • Sports Fields
      • Customer Service
        • Admissions & Memberships
        • How to Register
        • Recreation Assistance Program
        • Recreation Refunds
        • Swimming Policies & Guidelines
    • Venues, Facilities & Bookings
      • Event Planning Information
        • Event Accessibility
        • Event Insurance
        • Event Locations
        • Guide for Event Organizers
        • Municipal Alcohol Policy
        • Reserve Banner Space
      • Hamilton Stadium
        • Hamilton Stadium Events
        • Stadium Guest Information
        • Stadium Rentals
      • Venue Rentals & Packages
        • Birthday Parties
        • Corporate Rentals & Programs
        • Social Gatherings & Functions
          • Indoor Social Gathering Venues
          • Outdoor Social Gathering Venues
        • Wedding Venue Rentals
          • Indoor Wedding Venues
          • Outdoor Wedding Venues
    • Waterfront at Pier 8
  • council City & Council
    • Accountability & Transparency
      • Breach Notification
        • Call Queue Lines Notification
        • Cisco Phone Recordings Notification
        • Cybersecurity Update General Notification
        • Recreation Software Data
      • Council & Senior Leadership Expenses
      • Integrity Commissioner
        • File a Complaint with the Integrity Commissioner
      • Lobbyist Registry
        • Search the Lobbyist Registry
      • Mayor’s Task Force on Transparency, Access and Accountability
      • Office of the Auditor General
        • Audit Reports to Committees
        • Auditor General Scope of Work
        • Fraud & Waste Hotline
        • Whistleblower
      • Red Hill Valley Parkway Judicial Inquiry Overview
        • The Inquiry's Mandate
        • City Progress on Recommendations
        • Resources
        • Your Questions Answered
      • Routine Disclosure & Active Dissemination
    • Build Better: Strengthening Services & Systems
      • Enterprise Resource Planning System
    • Awards & Tributes
      • Accessibility Awards
      • Arts Awards
        • Arts Awards Recipients
        • Arts Awards Short List
        • Shirley Elford Emerging Artist Commission Prize
      • Commemorative Park Bench & Tree Program
      • Community in Motion Awards
      • HMHC Heritage Recognition Awards
        • HMHC Heritage Recognition Awards Nomination Form
      • Hamilton Signature Sign
      • Heritage Volunteer Service Awards
        • Bennetto & History Student of the Year Nomination
        • T. M. Bailey Heritage Award Nomination
      • Order of Hamilton
      • Senior of the Year Awards
        • Senior of the Year Awards Nomination Form
      • Sport Volunteer Awards
      • Trillium Awards
        • Trillium Award Volunteer Judges
        • Trillium Awards Winners
      • Urban Design and Architecture Awards
      • City of Hamilton Flag Protocol
    • By-laws & Enforcement
      • Search By-laws
      • Frequently Requested By-laws
      • Register a By-law Complaint
      • By-law Violations & Appeals
      • Discharging Firearms in Hamilton
      • Industrial Commercial Proactive Pilot Project
    • City Administration
      • Senior Leadership Team
        • City Manager
        • GM, Finance & Corporate Services
        • GM, Healthy & Safe Communities
        • GM, Planning & Economic Development
        • GM, Public Works
        • Executive Director, Human Resources
        • Chief Information Officer
      • City Budget
        • How to Get Involved in the Budget Process
        • Budget 101
        • 2026 Tax & Water (Rate) Budget
          • 2026 Water (Rate) Budget
        • 2025 Tax & Rate Budget
          • 2025 Rate Budget
        • 2024 Tax & Rate Budget
          • 2024 Rate Budget
        • 2023 Tax & Rate Budget
        • 2022 Tax & Rate Budget
        • 2021 Tax & Rate Budget
        • 2020 Tax & Rate Budget
        • 2019 Tax & Rate Budget
        • 2018 Tax & Rate Budget
      • Financial Results
      • International Delegations & Study Tours
      • City Directory
    • City Clerk's Office
      • Construction Liens
      • Freedom of Information & Privacy Protection
      • File a Freedom of Information Request
      • Marriage Services
        • Apply for a Marriage Licence
        • Marriage Certificates
        • Civil Ceremonies
    • Contact Us
      • Municipal Service Centres
    • Council & Committee
      • 2022-2026 Council Priorities, Outcomes & Measures of Success
      • Mayoral Decisions
      • Council & Committee Meetings
        • Meetings, Agendas & Video
        • Request to Speak to Board of Health
        • Request to Speak to a Committee of Council
        • Committee Listing
        • Conflict of Interest Registry
      • City Council Members
        • Mayor Andrea Horwath
          • City Building & Advocacy
          • Submit a Request
          • In the News
          • Get to Know Your Mayor
        • City Councillors
          • Ward 1
          • Ward 2
          • Ward 3
          • Ward 4
          • Ward 5
          • Ward 6
          • Ward 7
          • Ward 8
          • Ward 9
          • Ward 10
          • Ward 11
          • Ward 12
          • Ward 13
          • Ward 14
          • Ward 15
    • Data & Maps
      • City Dashboard
      • Annual Employment Inventory Survey
      • City Data
      • Data Policies
      • Hamilton Census Data Maps
      • Internet in Hamilton
      • Open Data
        • Open Data Licence Terms and Conditions
      • Telecommunications Towers in Hamilton
    • Jobs at the City
      • Applying for a Job
      • Employee Resources
        • Collective Agreements
        • Employee Benefits
        • Pay Information
      • Recruitment Opportunities
        • Bus Operator Recruitment
        • Full Time Firefighter Recruitment
        • Long-term Care Lodges Recruitment
        • Police Constable Recruitment - Lateral Transfer
        • Police Constable Recruitment - New Recruit
        • Primary Care Paramedic Recruitment
        • Roads Winter Operator Recruitment
        • School Crossing Guard Recruitment
        • Volunteer Firefighter Recruitment
        • Waste Collection Operator Recruitment
      • Student Opportunities
        • High School Co-op Student Program
        • Post-Secondary Student Placements
        • Public Health Post-Secondary Student Placements
        • Summer Student Program
      • Training & Certification
        • Taxi Driver Training
      • Volunteer Opportunities
        • Macassa & Wentworth Lodges Volunteers
        • Recreation Division Volunteers
    • Municipal Election
      • Candidates & Third Party Advertisers
        • Become a Candidate
        • Become a Third Party Advertiser
        • Candidates
      • Find my Ward
      • Election Resources
        • Notice of Penalties and Refund of Nomination Filing Fee
        • Election Compliance Audit Process
        • Elections Accessibility Plan
      • Election Finances
        • Financial Statements
        • Municipal Election Budget
      • Election Signs
      • Election Results & Archives
        • 2014 Election Results
        • 2016 By-Election Results
        • 2018 Election Results
          • 2018 Poll by Poll Election Results for Mayor and Councillors
          • 2018 Poll by Poll Election Results for School Board Trustees
        • 2022 Election Results
          • 2022 Poll by Poll Election Results for Mayor and Councillors
          • 2022 Poll by Poll Election Results for School Board Trustees
        • 2025 HWDSB Ward 4 Trustee By-Election Results
        • 2025 Ward 8 By-Election Results
      • Election Compliance Audit Committee
    • News & Notices
      • Media Room
      • News Releases
      • Council Communication Updates
      • Ministry Orders
      • Social Media
      • Subscribe to E-Updates
    • Plans & Strategies
      • City Projects
        • Expanding Mobility Choices
        • Rapid Ready
        • Ten Year Local Transit Strategy
      • Community Safety Summit
      • Hamilton Waterfront Trust Transition
      • Housing in Hamilton
        • Whole of Hamilton Housing Approach
      • Light Rail Transit (LRT)
        • LRT Enabling Works
        • LRT Council Reports & Documents
      • Environmental Assessments
        • Municipal Class EA Process
        • Search Environmental Assessments
      • Master Plans & Studies
        • Barton Street Functional Design Study
        • Biosolids Master Plan
        • Confederation Beach & Hamilton Beach Shoreline Management Master Plan
        • Flooding and Drainage Master Servicing Study
        • Hamilton Parks Master Plan
        • Hamilton’s Cycling Master Plan
        • Hatt Street Functional Design Study
        • Parking Master Plan
        • Pipeline Trail Master Plan
        • Public Art Master Plan
        • Recreation Master Plan
        • Recreational Trails Master Plan
        • Red Hill Valley Parkway and Lincoln Alexander Parkway Feasibility Study
        • Road Classification and Right-of-Way Study
        • Solid Waste Management Master Plan
        • Stormwater Management Master Plan
        • Strategic Transportation Network Review
        • Transportation Master Plan
          • Airport Employment Growth District Transportation Master Plan
          • Ancaster Transportation Master Plan
          • Binbrook Village Neighbourhood Traffic Management Plan
          • Centennial Neighbourhoods Transportation Management Plan
        • Truck Route Master Plan
        • Water and Wastewater Master Plan
        • Water, Wastewater, and Stormwater Master Plan
      • Strategies
        • 10-Year Downtown Hamilton Revitalization Strategy
        • 2016 - 2025 Strategic Plan
        • Archaeology Management Plan
        • Community Safety and Well-Being Plan
          • Hamilton’s Child and Youth Network
        • Connected Communities
        • Consumption and Treatment Services
        • Corporate Asset Management
        • Digital Strategy
          • my.hamilton.ca Portal
        • Engaging With Your City
          • Community Engagement
          • Public Engagement
        • Hamilton Civic Museum Strategy
        • Hamilton Drug Strategy
        • Hamilton Food Strategy
        • Neighbourhood Development
        • Our Future Hamilton
        • RZone Respectful Environments
          • RZone Incident Reporting
        • Tourism Hamilton Strategy
        • User Fee Framework
        • Youth Strategy
          • HamOntYouth Steering Committee Over 18 Registration Form
          • HamOntYouth Steering Committee Under 18 Registration Form
          • Xperience Annex: Youth Support in Hamilton
Public Notice

Complete Application for 36 Taylor Crescent, Flamborough

Breadcrumb

  1. Home
  2. City & Council
  3. News & Notices
  4. News Releases
  5. Complete Application for 36 Taylor Crescent, Flamborough
News Releases

Published

January 16, 2026

Media contact

[email protected]

News category

Public Notice

Share:

Notice of Complete Application for a Zoning By-law Amendment and Draft Plan of Subdivision

A change is proposed in your neighbourhood

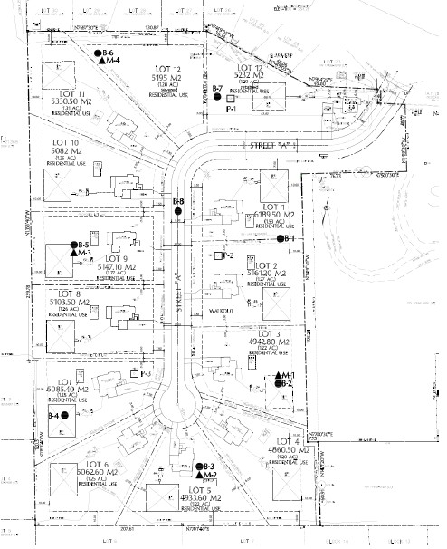
Proposal: The Applicant, GSP Group Inc. c/o Craig Rohe, submitted applications for Zoning By-law Amendment and Draft Plan of Subdivision to facilitate the development of a residential subdivision with a total of 12 residential lots along a new municipal road.

Address: 36 Taylor Crescent, Flamborough (Ward 13)

File Number: ZAC-25-037, 25T-202508

The City of Hamilton mails out notices to all property owners within 240m of the subject land. This notice is the first step in the application process and is an opportunity for you to provide any comments you may have early in the process.

Location map of 36 Taylor Crescent, Flamborough
Proposed rendering for 36 Taylor Crescent, Flamborough

Learn more. Share your thoughts. Stay Involved.

The proposed application, including supporting information, are available by contacting the Planning Division. You can also visit the Planning Division office at City Hall between the hours of 8:30 am to 4:30 pm, Monday to Friday.

You are invited to share your thoughts about the proposed development. Your comments will be considered by the Planning Division and will be included in the staff report. Submit your comments by February 4, 2026 to the Planning Division referencing the Address and File Number. Be sure to review the Appeal Rights and Collection of Personal Information sections below.

Mark your calendars - A Public Meeting is scheduled for April 14, 2026. A separate Notice will be mailed out to confirm this meeting date and provide more information on how to stay involved and have your say.

Daniel Barnett, Planner II
Planning and Economic Development Department
Development Planning
71 Main Street West, 5th Floor, Hamilton, ON, L8P 4Y5
Email: [email protected] 

Application Process

Timeline graphic for 8 step application process from submission to council decision

Additional information. Planning Act requirements.

The property is not subject to any other applications under the Planning Act.

Notice of Decision
If you wish to be notified of the decision of the City of Hamilton on the application(s) you must make a written request to:
Legislative Coordinator, Planning Committee
City of Hamilton
71 Main Street West, 1st Floor, Hamilton, ON, L8P 4Y5
Or by email to [email protected]

Appeal Rights for Zoning By-law Amendments
In accordance with the provisions of the Planning Act, appeals may be made only by specified persons, public bodies, or registered owners of land to which the amendment applies, as defined by the Planning Act.

  • If a person or public body would otherwise have an ability to appeal the decision of Council, City of Hamilton to the Ontario Land Tribunal but the person or public body does not make oral submissions at a public meeting or make written submissions to the City of Hamilton before the proposed official plan amendment is adopted or before the by-law is passed, the person or public body is not entitled to appeal the decision.
  • If a person or public body does not make oral submissions at a public meeting or make written submissions to the City of Hamilton before the proposed official plan amendment is adopted or before the by-law is passed, the person or public body may not be added as a party to the hearing of an appeal before the Ontario Land Tribunal unless, in the opinion of the Tribunal, there are reasonable grounds to add the person or public body as a party.

The general public and other interested parties not defined are no longer eligible to file Planning Act Section 17(24), 17(36) and 34(19) appeals. For more information, visit Bill 185, Cutting Red Tape to Build More Homes Act, 2024

Draft Plan of Subdivision/Vacant Land Condominium

  • If a person or public body would otherwise have the ability to appeal the decision of the City of Hamilton but does not make oral submissions at a public meeting, if one is held, or make written submissions to the City of Hamilton in respect of the proposed plan of subdivision before the approval authority gives or refuses to give approval to the draft plan of subdivision, the person or public body is not entitled to appeal the decision to the Ontario Land Tribunal. 
  • If a person or public body does not make oral submissions at a public meeting, if one is held, or make written submissions to the City of Hamilton in respect of the proposed plan of subdivision before the approval authority gives or refuses to give approval to the draft plan of subdivision, the person or public body may not be added as a party to the hearing of an appeal before the Ontario Land Tribunal unless, in the opinion of the Tribunal, there are reasonable grounds to do so.

Collection of Personal Information
Information respecting this application is being collected under the authority of the Planning Act, R.S.O. 1990, c.P.13. All comments and opinions submitted to the City of Hamilton on this matter, including the name, address and contact information of persons submitting comments and/or opinions, will become part of the public record and will be made available to the Applicant and the general public and will appear on the City’s website unless you request that the City remove your personal information.

If you need any accommodations to view or obtain materials in alternate format, please contact the Planning Division at [email protected].


This Notice was issued by the City of Hamilton’s Legislative Coordinator, Planning Committee on March 18, 2026.

Tags
Build, Invest & Grow
Planning & Economic Development
Planning Application
Read Next Article
Date modified
2026-03-18 15:04
Was this information helpful?
Home

Footer (primary)

  • People & Programs
  • Home & Neighbourhood
  • Build, Invest & Grow
  • Things to Do
  • City & Council

Footer (secondary)

  • Terms of Use
  • Privacy
  • Contact Us
  • Translate
  • Accessibility
  • Media Room

Subscribe to the City of Hamilton’s updates and notifications to stay informed on latest news, events, city services and more!

Subscribe to e-Updates
  • X
  • Facebook
  • Youtube
  • Instagram
  • LinkedIn

©2024 City of Hamilton